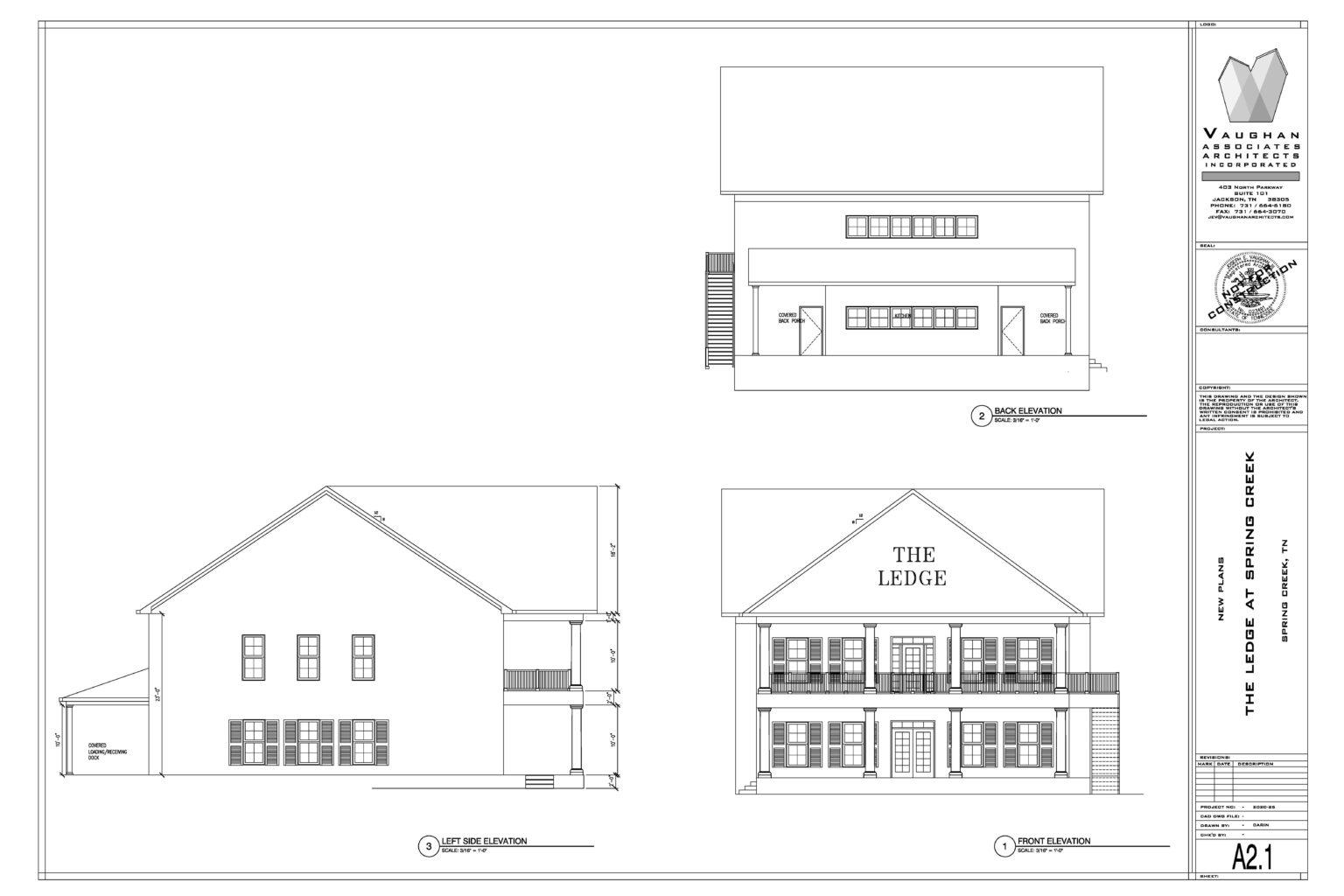
The Ledge Construction Update